Kircheim 1

Teilmodernisiertes Ein- bis Zweifamilienhaus in Heidelberg mit Garten und Garage: Bei dieser Immobilie handelt es sich um ein charmantes Ein- bis Zweifamilienhaus, das zur Eigennutzung oder als Kapitalanlage geeignet ist. Die Gartenfläche ist außerdem als Baugrundstück abtrennbar. Die Immobilie wurde seit Mitte der 90er Jahr kontinuierlich saniert. Das Dachgeschoss ist mit einer Fläche von ca. 40 m² ausbaufähig, im Obergeschoss befindet sich eine 3 Zimmerwohnung, die komplett renoviert und momentan vermietet ist. Die Zimmer im Erdgeschoss sind teilrenoviert und ebenfalls vermietet.

IMG_8173Da hat die Peggy im Internet was interessantes aufgetan: Christopher und Ingo hatten die Anzeige zwar auch schon mal gesehen, aber aus nicht mehr nachvollziehbaren Gründen nicht weiter beachtet. Um so besser, dass aus Dossenheim sofort Alarm geschlagen wurde.

IMG_8182Also gings ans Werk: Ingo rief sofort zu später Stunde den Makler an, bei dem sogar noch Mitarbeiter am Werke waren und nicht nur fix das Exposé mailten sondern auch gleich noch der zuständigen Person eine Nachricht hinterließen, auf dass diese am nächsten Tag anriefe. Und (nach der letzten Maklererfahrung überrascht sowas) die tat dies sogar. Nach einem kurzen Austausch, was wir suchen und ein paar weiterführenden Informationen zu den aktuellen Bewohnern, schickte sich die gute Maklerfrau Ritz an, mit den Mietern einen Termin zu vereinbaren, um das Anwesen zu besichtigen.

Zu den weiterführenden Informationen gehörte auch, dass das Objekt aktuell an drei Parteien vermietet sei – zwei davon hätten eine 3-monatige Kündigungfrist, die Familie im Obergeschoss eine 9-monatige. Damit ließe sich ja leben, weil auch Christopher und Ingo 3 Monate ab Kündigung in Sandhausen wohnen müssen / können.

IMG_8180Eine Woche später stand dann auch der Termin für den gestrigen Samstag fest. Und siehe da: Eigentlich gibt es bis jetzt immer noch keinen triftigen Grund, der gegen das Haus spricht. 1902 gebaut und 1992 neues Dach, neue Heizung, neue Rohre. Womit schon mal die Klassiker unter den Geldgräbern aus dem Rennen sind. Die drei größten Investitionen, die getätigt werden müssen sind zwei neue Treppen (Originalbestand aus 1902 und dementsprechend nur waghalsig begehbar), eine neue Haustür (die hat auch die besten Zeiten hinter sich) und der Ausbau des Dachgeschosses, das eine wirklich schöne Dachbalkenkonstruktion und eine witzige Sandsteinmauer im Angebot hat (da braucht man gar nicht soviel machen und hat ein original „Schöner-Wohnen“-Arbeitszimmer). Das Beste daran ist aber, dass das alles nicht gleich und sofort passieren muss, sondern man trotzdessen einziehen kann.

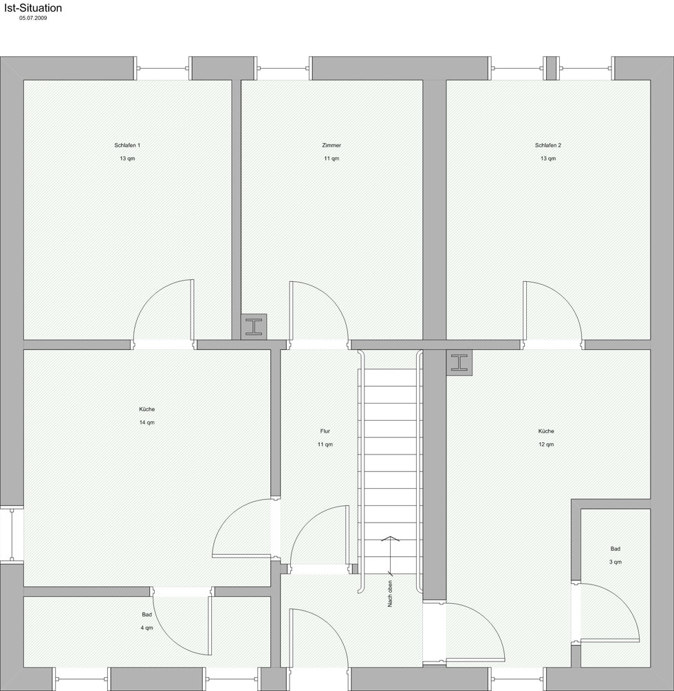
Allerdings muss das Erdgeschoss, dass für Peggy, Micha und Anouk vorgesehen ist, ein wenig umgestaltet werden, da es momentan eine Aneinanderreihung von Durchgangszimmern ist. Aber ein paar Rehgips-Wände machen auch hieraus eine schicke 70m²-Wohnung – und man kann das Meiste selbst machen.Hier für Euch die große Planung: So ist’s jetzt und so soll’s werden.

Nebenbei hat das Haus noch einen wirklich netten Garten der teilweise mit einer nahezu mediterranen Anmutung daherkommt. Und noch einen „Schuppen“ der eigentlich ein Nebengebäude in der Größe von zwei Garagen ist. In der Summe viel schöne Substanz und trotzdem noch genug Potential, dass wir uns darin austoben können.

Also kommen wir nun zu Phase 3: Mit der Bank schnacken, einen Gutachter mieten und noch mal rein ins Haus.

Und auch wenn es jetzt doch nicht klappen sollte in Kirchheim: Es tut uns allen gut, dass mal etwas passiert und wir wild rumspinnen können, wer welchen Schrank wohin stellt.

4 Gedanken zu „Kircheim 1&8220;

  1. Hallo Ihr Fünfe, das sieht aber toll aus, man hat ja garnicht soviele Daumen wie man drücken möchte. Werde auch mal gleich noch Jitti davon berichten. Wann ist denn Gutauchtertermin? Ich glaube davon hängt jetzt alles ab.

  2. Bin immer noch zweitweise sehr überwältigt und sprachlos, was hier in den letzten Tagen passiert ist. Ich kann es kaum fassen, das unsere Suche so schnell schon ein glücklies Ende finden soll. In den letzten 2 Jahren ga es soviele Höhepunkte und das Haus scheint, in greifbarer Nähe, ein neuer zu werden. Ich freue mich darauf, wenn das alles klappt, zusammen unter einem Dach leben zu können. Ich kann momentan meine Gefühle schwer zeigen, Jungs. Das ist keine böse Absicht, sondern einfach nur eine gewissefreudige Fassungslosigkeit!

Da muss ich aber was zu schreiben!